
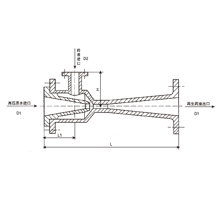
| 型號 | 配離子交換器直徑(mm) | 型號 | 聯接尺寸PN.98MPa | |||
| L | L1 | H | D1 | D2 | ||
| HCP-300 | 1000 | 322 | 100 | 100 | DN40 | DN25 |
| HCP-301 | 1500 | 525 | 128 | 128 | DN80 | DN25 |
| HCP-302 | 2000 | 527 | 121 | 121 | DN80 | DN40 |
| HCP-303 | 2200 | 521 | 116 | 116 | DN80 | DN40 |
| HCP-304 | 2500 | 665 | 159 | 159 | DN100 | DN40 |
| HCP-305 | 2800 | 690 | 176 | 176 | DN100 | DN50 |
| HCP-306 | 3000 | 824 | 153 | 153 | DN125 | DN50 |
| HCP-307 | 3200 | 857 | 192 | 161 | DN125 | DN50 |















